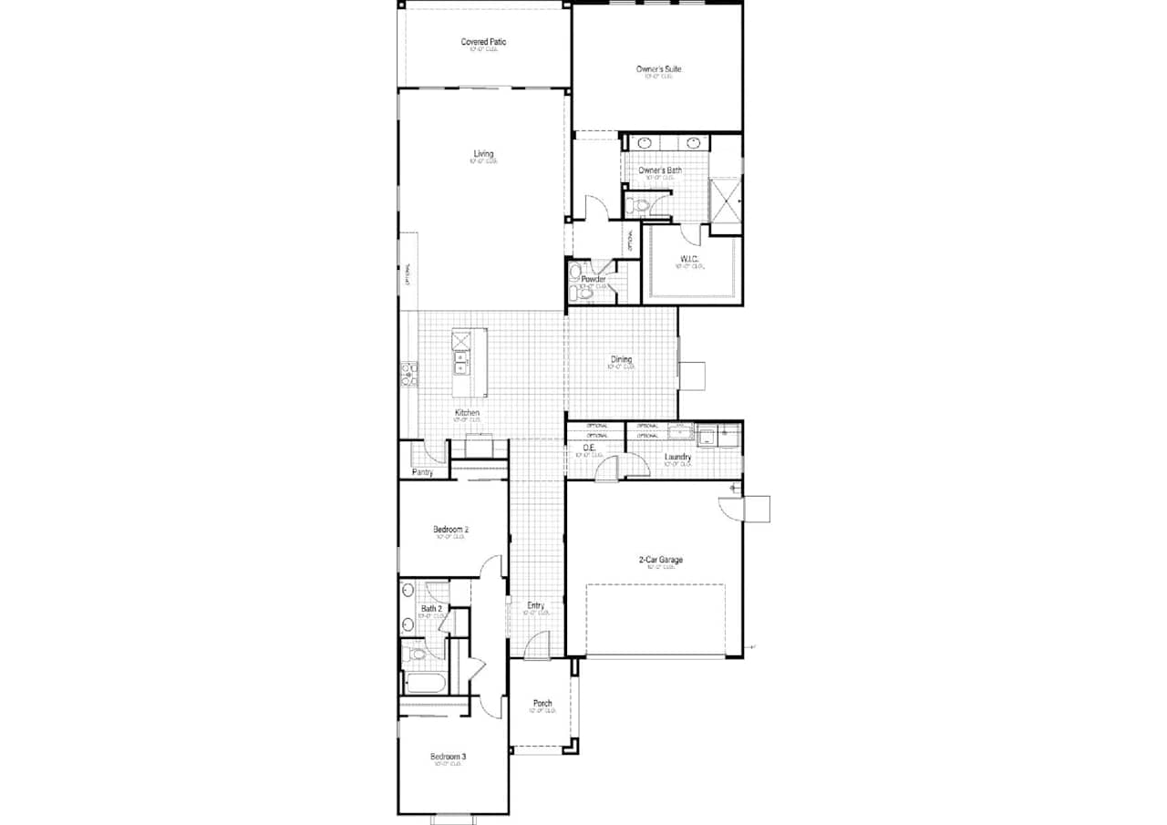
Residence 4

Welcome to Residence 4

  • 2,557 SF
  • 3-4 Bed, 2.5-3 Bath
  • Single Story 
  • Covered Back Patio

Elevation B

Elevation C

Elevation D

Floor Plan

Get to Live Here

Suburban living has never been so exciting and urban living has never felt more like home. When at Crocker Village, Sacramento comes to you.

Follow Us on Instagram